Послуги
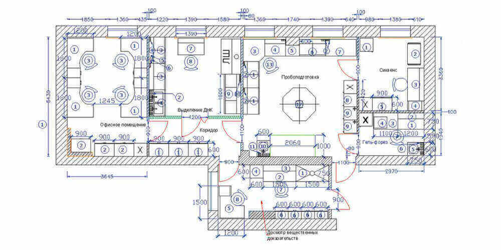
Лабораторія потребує не тільки якісні спеціальні меблі, але й першокласний продуманий проект. Такий проект повинен забезпечити: продуктивний робочий простір, легкість підключення комунікацій, зручність і безпеку роботи співробітників лабораторії.
Команда Експерт професійно облаштує Вашу лабораторію. Послуги експертів включають: розробку детального проекту, поставку, монтаж лабораторних меблів у Вашому приміщенні і гарантійне та післягарантійне сервісне обслуговування.












